서비스 접근 대기 중입니다.
현재 접속 사용자가 많아 대기중이며,
잠시만 기다리시면 자동 접속됩니다.
서비스 접속이 차단 되었습니다.
현재 접속하신 아이피에서는
접속이 불가능합니다.
서비스 접속이 불가합니다.
접속량이 많아 접속이 불가능합니다.
잠시 후 다시 접속해주세요
메뉴 바로가기
본문 바로가기
콘텐츠
콘텐츠
이달의 콘텐츠
기획 콘텐츠
전시
컬렉션
컬렉션
도서 시리즈
아카이브 컬렉션
주제별 컬렉션
지역
지역
지도
지역명
타임라인
타임라인
시대
연대
이용안내
이용안내
아카이브소개
검색안내
저작권안내
함께하는 기관
사이트맵
콘텐츠
이달의 콘텐츠
기획 콘텐츠
전시
컬렉션
도서 시리즈
아카이브 컬렉션
주제별 컬렉션
지역
지도
지역명
타임라인
시대
연대
이용안내
아카이브소개
검색안내
저작권안내
전체
제목
목차
생산자
설명
상세검색
열람하기
Prev
Next
카카오톡
페이스북
공유하기
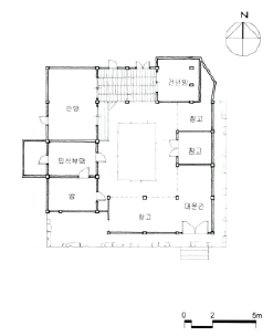
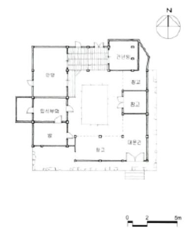
지계마을 전병우가옥 #2
전병우가옥 평면배치도
주요 정보
상세 정보
디지털 파일 정보
제공자
경기문화재단
생산자
경기문화재단
생산일자
2003-11-01
지역
양주
장소
양주
유형
사진그림류
/
이미지
경기도메모리 주제
일상.생활문화
,
건축.토목
열람하기
관리번호
SE0006038
제공자
경기문화재단
생산자
경기문화재단
생산일자
2003-11-01
경기도메모리 주제
일상.생활문화
,
건축.토목
지역
양주
장소
양주
시간적 범위
조선
,
일제강점기
,
현대
유형
사진그림류
/
이미지
열람하기
파일명
210030676_SE0006038_20220216_DU_1.jpg
파일 형식
jpg
파일 크기
0.024MB
너비
247
높이
304
열람하기
열람하기